О нас
Мы - ПРОизводители
Наша цель - качественные и безопасные материалы для отвода талых и дождевых вод с откосов насыпей дорог.

Проектно-технического отдела
всегда на связи 24/7
Продукция всегда в наличии на складе и готова к отгрузке
Полный спектр от подготовки проектного решения до реализации продукции на объект строительства.
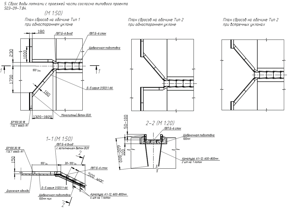
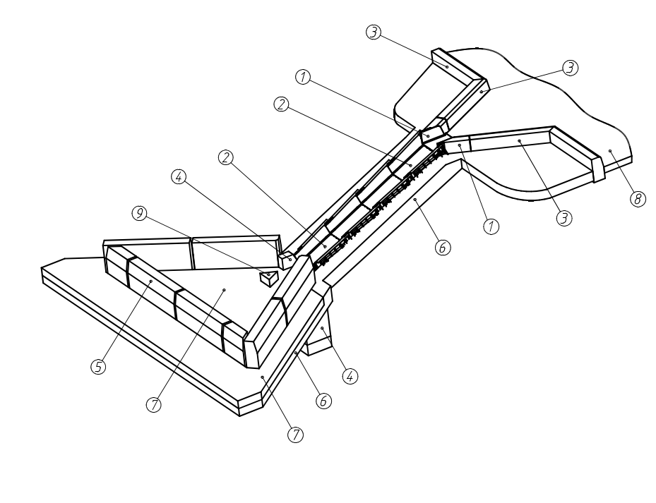
Система лотков водоотводных пластиковых Б-6 представляющая в сборе быстрого поперечного лотка с насыпи автомобильной дороги, комплектуется следующим образом:
*каждая линия стротока начинается с сопрягающего лотка ЛВП Б-6 вход, который с одной стороны присоединяется к дорожному полотну через примыкание бордюрным камнем, с другой стороны к нему присоединяется группа транзитных телескопических лотков ЛВП Б-6 сток
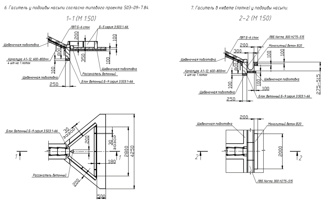
*крайний нижний телескопический лоток ЛВП Б-6 сток присоединяется к отводящему и гасящему устройству
*отводящим устройством может служить другой тип лотка, принимающий и отводящий воду из телескопического транзитного лотка ЛВП Б-6 сток
*гасящим устройством может служить сборная или монолитная железобетонная конструкция типа водобойная стенка, водобойный колодец, водобойный уступ, гаситель в кювете (лотке)
Удельный вес 0,5 п.м. на кг пластикового лотка Б-6 составляет 3кг, что значительно меньше бетонного аналога в 54кг
Заполняемость стандартной фуры пластиковыми телескопическими лотками Б-6 составляет 900п.м., что в разы больше, чем бетонные аналоги (180п.м.) и лотки из композитных материалов (500п.м.)
Высокая адаптивность к рельефу местности, за счет небольших секций в 0,5м и малого веса делает монтаж простым и легким